Buckingham Pools handover hydrotherapy & training facility at Stoke City F.C.








Buckingham Pools handover hydrotherapy
& training facility at Stoke City F.C.
Buckingham Pools were appointed by Speller Metcalfe to Design and Build a specialist hydrotherapy and wellness facility, forming part of a wider high-performance training and recovery environment at Stoke City F.C. training ground, Clayton Wood. The development brings together advanced sports science, medical and wellbeing spaces, including a hydrotherapy suite, cryotherapy chamber, performance gym and athlete recovery zones. Designed to support elite-level conditioning, the facility delivers a purpose-built environment where performance, rehabilitation and recovery are seamlessly integrated.
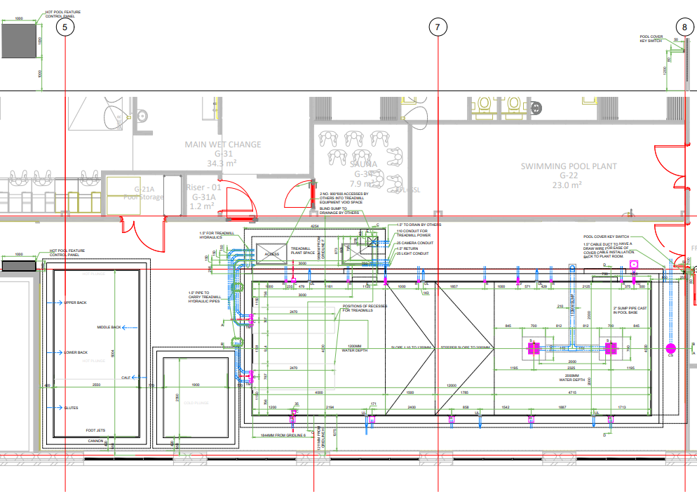
At the core of the project is a 12m x 4m specialist hydrotherapy pool, with a variable depth ranging from 1.2m to 2.6m, engineered to support a wide range of rehabilitation and conditioning protocols. The pool is equipped with Endless Pools underwater treadmills and resistance systems, alongside EWAC Medical bicycles. These integrated systems enable controlled, low-impact exercise, allowing athletes to maintain cardiovascular conditioning while reducing stress on joints and soft tissue. An underwater camera system further enhances the facility, providing real-time biomechanical analysis to support injury prevention and performance optimisation.
Complementing the main pool are dedicated hot and cold therapy pools, measuring approximately 5.3m x 2.5m and 2.5m x 1.2m, respectively, alongside a sauna to complete the thermal suite. The hot pool promotes muscle relaxation, improved circulation and accelerated recovery, while the cold pool supports inflammation reduction and muscle repair through contrast therapy protocols. Together, these facilities form a comprehensive recovery circuit, widely recognised in elite sport for enhancing performance longevity, reducing injury downtime and supporting overall athlete wellbeing.
The facility is underpinned by a state-of-the-art plant room, designed and engineered to ensure optimal water quality, efficiency and reliability. Advanced filtration systems are combined with a UV water treatment solution, delivering superior disinfection while reducing chemical dependency. The mechanical and electrical installation has been carefully coordinated to meet the rigorous demands of a high-usage, performance-led environment, ensuring consistent operation and ease of maintenance.
Jason Nicholas, our Contracts Manager, shares: “The biggest challenge on this project was the programme. It was a fast-moving environment where we had to mobilise quickly and remain highly adaptable as the site developed. With multiple subcontractors working in the same areas, often up to six or eight at any one time, daily coordination was critical to maintain progress. Despite the usual challenges—supplier delays, design changes and programme pressures—we were able to rely on a consistent team of experienced engineers on site throughout. This continuity allowed us to proactively identify and resolve issues early, ensuring we maintained momentum and ultimately delivered in line with the main contractor’s completion dates.”
Through close collaboration with the wider project team, Buckingham Pools delivered a fully integrated solution that aligns with the client’s performance objectives. From early-stage design development through to final commissioning, our team provided technical expertise, precision engineering and a deep understanding of hydrotherapy environments. The result is a future-focused facility that reflects the growing importance of scientifically driven recovery in professional sport—combining innovation, durability and performance-led design to create a space that works as hard as the athletes it supports.
In Partnership With

